|
|
|
|
|
|
|
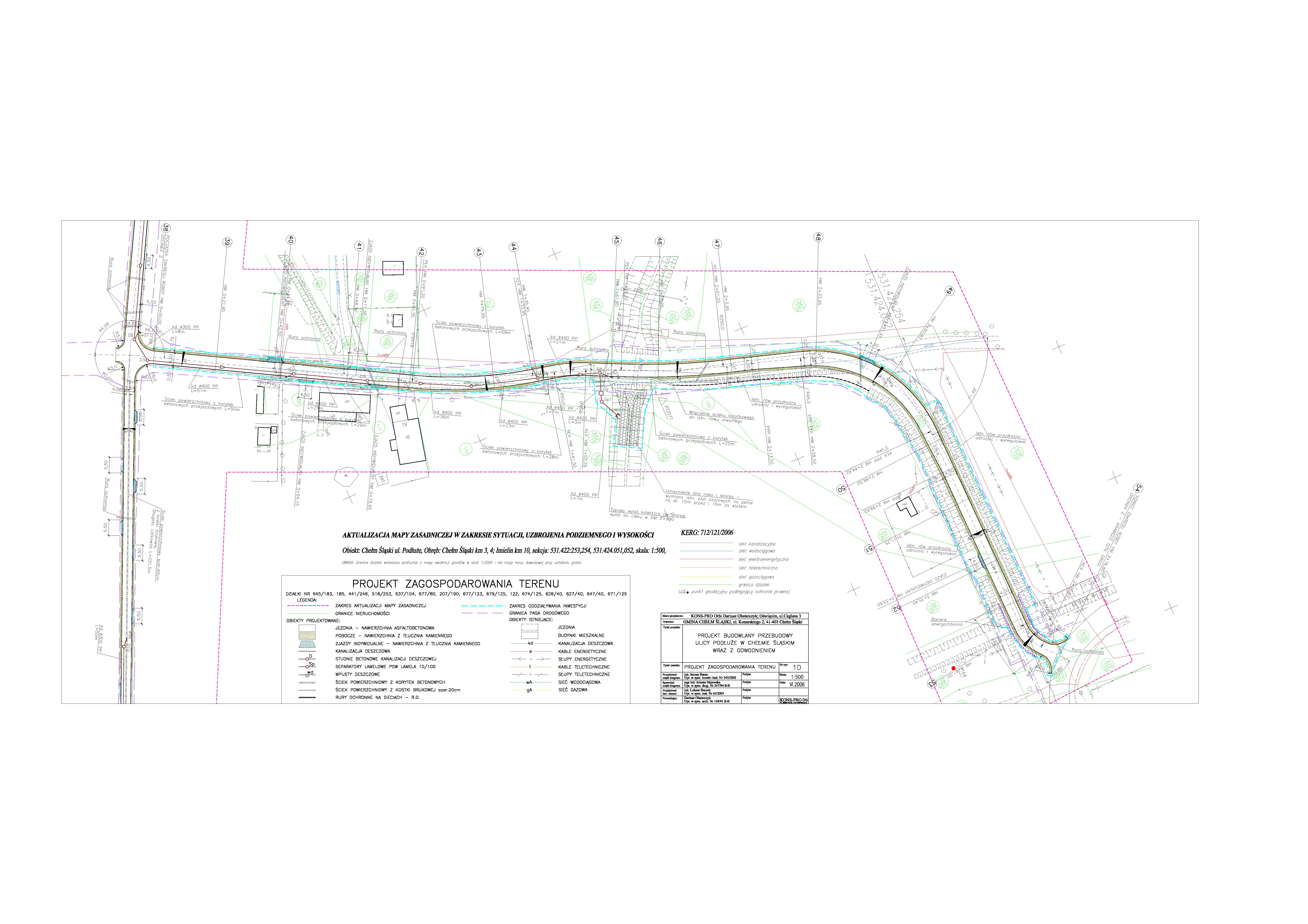
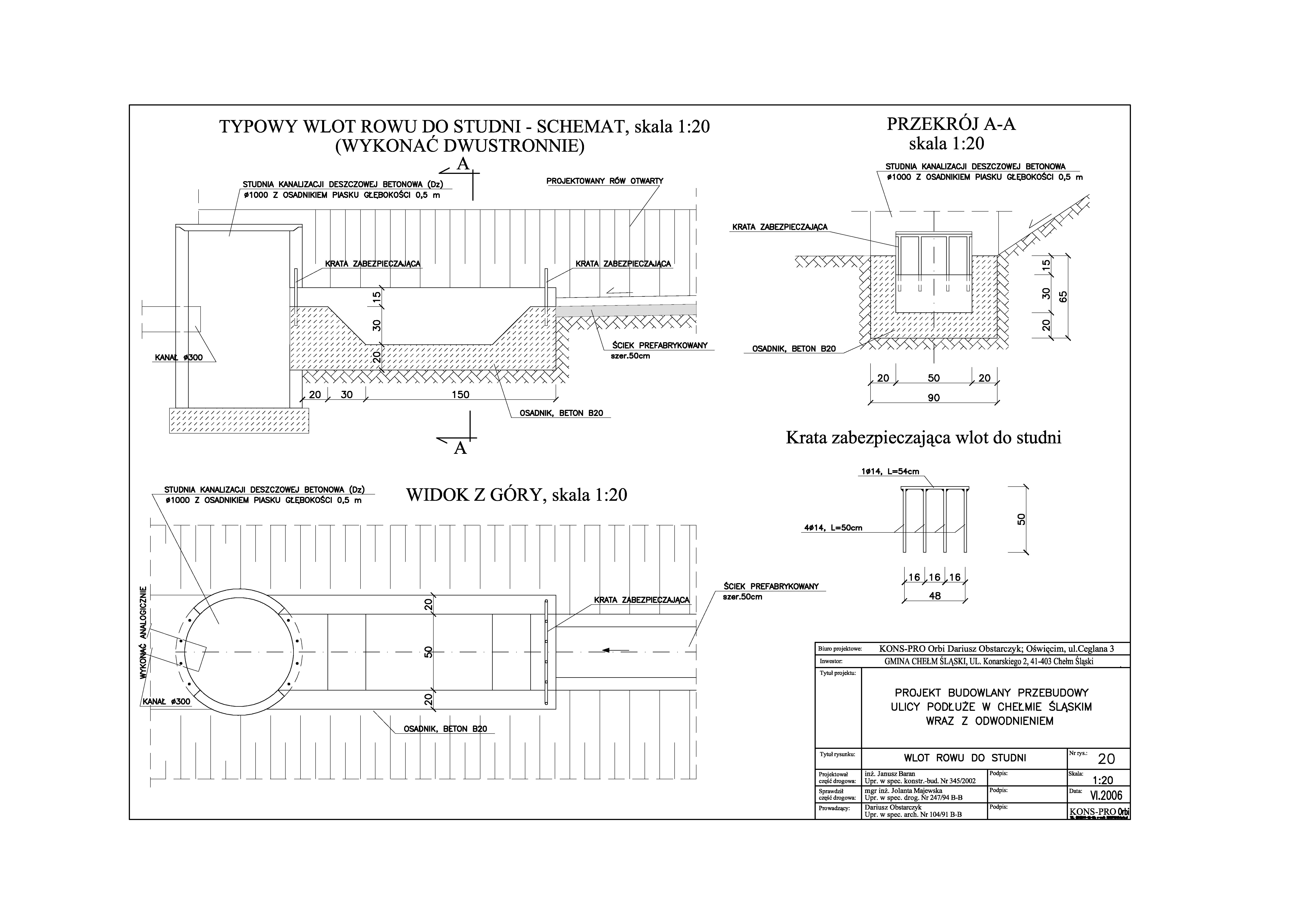
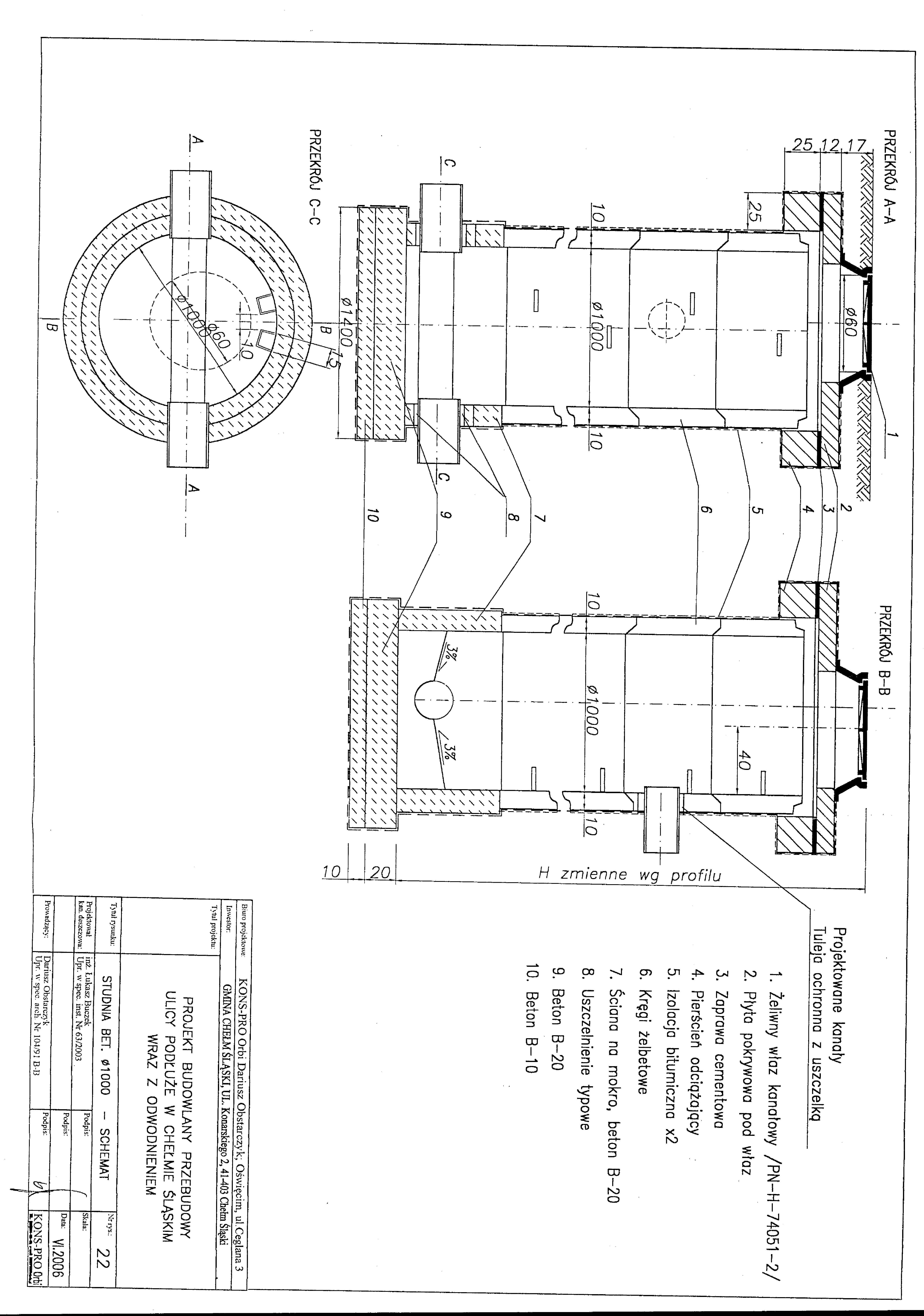
Przebudowa ul. Podłuże w Chełmie Śląskim Odcinek I - w kilometrażu od 0+00 do 3+76,85 Odcinek II – w kilometrażu od 7+11,45 do 9+41,25 |
Symbol | 341/II/18/2007 | Osoba odpowiedzialna | <BRAK> | Data utworzenia | 2007-08-30 | Udostępnił | Michał Palka | Data udostępnienia | 2007-08-30 14:14:19 | Data ost. zmiany | 2007-11-23 14:23:58 | Pliki | | Ogłoszenie o udzieleniu zamówienia | 66,16 kB | | Ogłoszenie o wynikach | 266,58 kB | | Prefabrykat ścieku | 254,53 kB | | Profil podłużny cz3 | 1,54 MB | | Przekrój typowy I | 1,29 MB | | Schemat studni 1000 | 981,19 kB | | Schemat studni 1000 z osadnikiem | 960,92 kB | | Schemat wpustu | 1,14 MB | | Separatory lamelowe | 593,77 kB | | Specyfikacja techniczna | 650,91 kB | | Wlot rowu | 1,64 MB | | Współpraca separatora z osadnikiem | 544,28 kB | | Wykop | 1,23 MB | | Wylot kolektora | 686,32 kB | | Zagospodarowanie | 2,20 MB | | Zjazd indywidualny | 1,36 MB | | Ścianka czołowa wylotu | 558,78 kB |
|
Wszystkie zmiany |
|
|
|